Зимняя горка TORUDA Север wood-8/1 (скат 9 м)

Цена
475 430 

Характеристики

Характеристики
  • Страна производства: Россия
  • Код изделия: Н145417
  • Масса: 1010 кг
  • Высота, см: 508 см
  • Ширина, см: 361 см
  • Длина (глубина), см: 1024 см
  • Материал:
  • Цвет:
  • Размещение: на улице
  • Особенности комплектации:
  • Возрастная группа:
  • Способ установки:
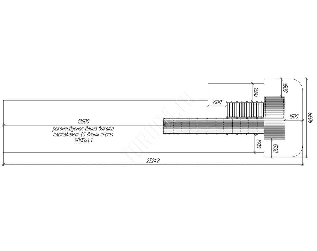
  • Длина ската: 900 см
  • Материал ската:
  • Диаметр гнезда, см:
  • Толщина:
  • Тип (конструкция):
  • Категория:  Деревянные, Горки, Зимние, Для дачи, Большие

Описание

Горка может быть использована в общественных местах при условии окрашивания.

ВНИМАНИЕ: Горка производится без окрашивания. После покупки покраску нужно выполнить самостоятельно.

Любую горку можно разобрать и собрать.

Горки собираются на саморезы разной длины.

Для использования зимних горок в общественных местах необходимо ОБЯЗАТЕЛЬНО приобрести табличку: "Правила использования зимней заливной горки", не входит в стоимость горки, приобретается отдельно.

Универсальная деревянная зимняя горка TORUDA Север wood-8/1 – модель с самым длинным скатом из зимней линейки без покраски (9 м).

Её каркас сделан из клееного бруса. Он устойчив к влажности, морозу, перепадам температуры, что делает игровой комплекс всепогодным и всесезонным. Также обладает высокой прочностью, сохраняет геометрию в процессе эксплуатации. 

Безопасность детей обеспечивается тщательной шлифовкой и скруглением деталей еще на этапе их производства. Металлические шляпки болтов конструкторы предусмотрительно закрыли несъемными пластиковыми заглушками.

Характеристики:

  • Длина: 10242 мм
  • Ширина: 3606 мм
  • Высота: 5082 мм
  • Длина ската: 9000 мм
  • Ширина ската: 1250 мм
  • Высота платформы: 2300 мм
  • Обработка дерева: комплекс поставляется БЕЗ ПОКРЫТИЯ
  • Силовые детали: клееный брус 90х90 мм
  • Материал: ель/сосна камерной сушки
  • Ступени: антискользящие с ребристой поверхностью
  • Деревянная крыша: да

Адрес пункта выдачи в Грозном: ул Петропавловское шоссе, дом 60А.

Самовывоз в Грозном
По адресу: Грозный улица Н.А.Назарбаева 113 Корпус 7

Доставка без выгрузки по Грозному 2 000 

Установка 118 860 

Урус-Мартан, Гудермес, Гудермес, Шали, Аргун, Курчалой, Ачхой-Мартан, Цоци-Юрт, Бачи-Юрт, Гойты, Автуры, Катар-Юрт, Гелдагана, Знаменское, Майртуп

По QR коду

Банковской картой на сайте

Рассрочка -- от Тинькофф

Безналичный платеж для юр.лиц

ВозвратВ течение 14 дней

Гарантия 12 месяцев

Также дополнительно заказывают
Похожие изделия